震災復興事業


(津波で壊された建物)
(津波で壊された建物)

震災復興事業
(石巻市の様子)



宮城県石巻市S食品

2011年3月11日の東日本大震災で津波に流された建物を早期復旧し地元産業を取り戻す為、冷蔵庫の復旧事業を行いました。

【工事期間】
H24年1月~H24年5月

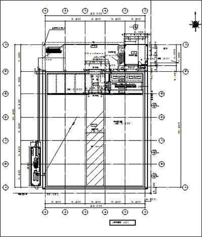
【工事規模】
冷蔵庫(26m*30.2m*6.7m) 2,000ton -40℃
凍結庫(5m*10m*7m) 10ton -35℃

冷凍機

蒸発器/エバコン


冷凍機配置図

エバコン配置図


冷蔵系機器配置図